上海承質船用閥門生產的船用閥門可按中國GB、機械部JB、化工標準HG、美標API、ANSI、德標DIN、日本JIS、JPI、英標BS生產,企業積極實施ISO9001:2000質量認證體系,并嚴格按照各技術標準和圖紙設計、生產、檢驗。以優異的品質,完善的服務和及時的交貨贏得了眾多造船、修船企業的一致信賴和好評。并可根據用戶需要提供CCS、LR、ABS、GL、DNV、BV、NK、RINA等世界知名船級社的產品檢驗證書。承質閥門擁有專業的生產設備和技術工程師,有能力按照各國標準以及各種行業標準生產制造優質船用閥門。
DF-ISO型高速透氣閥的結構圖

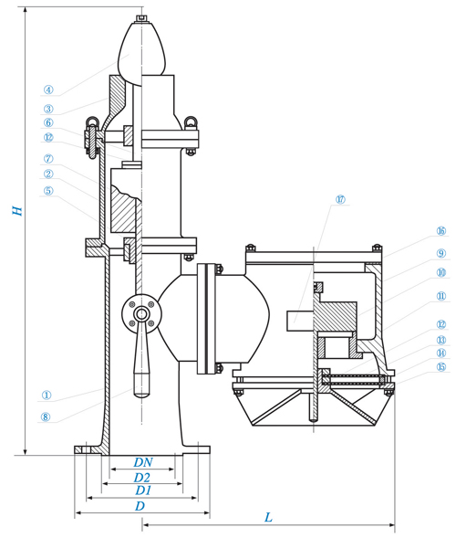
DF-ISO型高速透氣閥的選用和安裝

一般用于裝載環氧丙烷類的液貨船舶,均能裝載普通化學品。因此,每個液貨倉必須裝有CF-ISO型和DF-ISO型高速透氣閥各一個,其安裝方法如下圖。當船舶裝載環氧丙烷類貨品時,只要將CF-ISO型壓力閥強制關閉即可,反之,如裝載普通化學品時,只要開啟強制關閉裝置。裝卸貨前,應按運作要求進行閥門升降檢查。檢查時,必須同時檢查兩個閥的壓力閥和真空閥,因為該使用方法中的兩個閥門具有相互保險的作用,可以最大限度地防止貨艙超壓和失壓。依據DF型壓力/真空閥的流量范圍,可以安裝在DN125(含DN125)以下的透氣管上,連接法蘭由用戶任選。
DF-ISO型高速透氣閥的壓力運行曲線圖

7.4 DF-ISO型高速透氣閥型號和主要性能參數

聲明:
本文中所有文字、數據、圖片均只適用于參考。需要查看更多的DF-ISO型高速透氣閥性能參數、結構尺寸參數、價格等詳情,或要求高質量印刷樣本,請聯系我們。
· 電話:18717746989
· 郵箱:sales@shczvalve.com
承質訂貨須知:(國家標準):
一、A:產品名稱、型號、公稱通徑B:介質及溫度、壓力范圍C:是否有附件、交貨期、特殊要求等以便我們的為您正確選型。
二、若已經由設計單位選定我公司的閥門型號,請您根據閥門參數直接與我們銷售中心訂購。
三、當您使用的場合非常重要或環境比較復雜時,請您提供設計圖紙和詳細參數,我們的工程師專家會為您審核與分析。我們可以為您提供專業的解決方案,包括設計、定做、成套、運行、服務。我們一直致力于閥門行業領域的領導者,為您提供最新的船用閥門知識、最好的服務、最佳的技術顧問。
感謝您訪問我們的網站【http://www.bullfull.com】,如有任何疑問,您可以致電給我們,我們一定會盡心盡力為您提供優質的服務。本廠專業提供船用蝶閥、船用閘閥、船用止回閥、船用調節閥、船用減壓閥、船用呼吸閥、高速透氣閥、船用快關閥、船用自閉閥、船用旋塞閥、船用消防閥、船用通海閥、船用防浪閥、船用濾器、船用空氣帽、船用球閥、船用截止閥、船用截止止回閥、船用閥組、船用截止閥箱、船用針型閥、船用電磁閥、船用隔膜閥、船用壓力表閥等各類船用閥門,不銹鋼閥門。